Produktionsflächen/Lagerflächen/Ausstellungsfläche/Büros
Eckdaten
- Art Ausstellungsfläche (Produktion)
- Lage Rudolf-Diesel-Straße 17
85521 Hohenbrunn - Miete zzgl. NK 7.150,00 €
- Mietpreis pro m² 6,76 €
- Nebenkosten 1.300,00 €
- Gewerbefläche ca. 1.057 m²
- Bürofläche ca. 531 m²
- Kellerfläche ca. 120 m²
- Gesamtfläche ca. 1.057 m²
- Etagenzahl 2
- Heizungsart Öl-Heizung
- Stellplatztyp Aussenstellplatz
- Stellplatzanzahl 8
- Kaution 3 Monatskaltmieten
- Stellplatzmiete 40,00 €
- Bezugstermin 01.04.2026
- Fahrzeit Hauptbahnhof 30 min
- Fahrzeit nächste Autobahnauffahrt 5 min
- Fahrzeit nächster Flughafen 45 min
- Bodenbelag Beton Stein Epoxidharzboden Teppichboden
- Zustand Gepflegt
- Immobilien-ID 1094
Immobilie
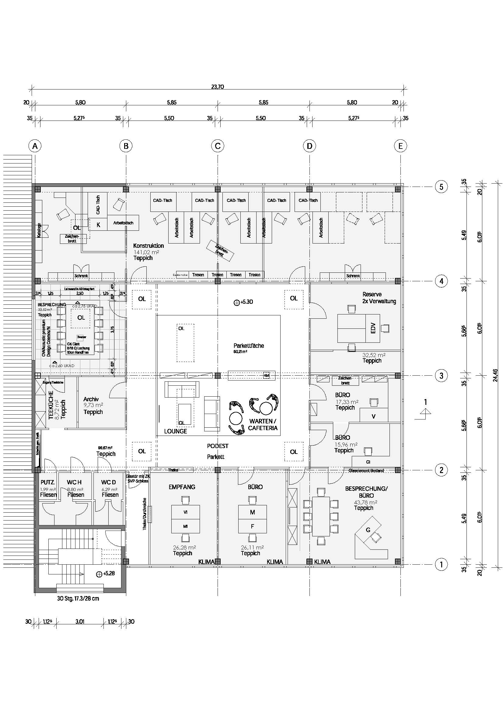
Vor den Toren Münchens befinden sich im 1. OG des 1981 erbauten und in 2012 neu ausgebauten Gebäudes die Büro- und Ausstellungsfläche. Im angrenzenden Nebengebäude liegen im Erdgeschoss die weiteren Büro/Verkaufsflächen, sowie die Lager und Produktionsflächen im EG. im Untergeschoss befindet sich der Keller mit weiteren Sozialräumen.
Neben dem hohen Nutzwert der Immobilie kann sich der Mieter auch über den geringen Gewerbesteuerhebesatz von 320 der Gemeinde Hohenbrunn freuen.
Die zu vermietende Fläche gliedert sich wie folgt:
Lager/Produktionsfläche/Ausstellungsfläche/Verkaufsfläche im EG: 406,11 m²
Moderne Büro- und Ausstellungsfläche 1. OG: 530,93 m²
Keller mit Sozialraum/Archiv: 120,00 m²
Die gegenständlichen Flächen sind in der Plänen/Grundrissen grün umrandet.
PKW-Außenstellplätze: 8 Stk.
Lage
Die Räumlichkeiten liegen in Hohenbrunn bei München im Süd-Osten der Stadt. Die Anbindung an A99 und A8 ist
perfekt. Gleich in der Nähe befindet sich die Bushaltestelle für den 210er Bus, mit dem die S5 in Ottobrunn (Stammstrecke) schnell
erreicht ist. Für Elektroautos gibt es am Objekt zwei Ladesäulen.
Ausstattung
Die Büroflächen/Ausstellungsflächen sind komplett klimatisiert. Hochwertiger Teppichboden in den Büros, sowie ein moderner pflegeleichter Epoxidharzboden, wurden als Bodenbelag gewählt. Helle hohe Räume, modernes Designe, sowie eine Option die hochwertige Möblierung mit zu übernehmen, kennzeichnen das Objekt.
Das professionelle Mobiliar besteht aus Einbauwandschränken und Regalen. Höhenverstellbare Schreibtische, Bürostühle und weiterer Büroausstattung, werden nach Vereinbarung kostenfrei mit überlassen.
Für eine zeitgemäße IT-Anbindung sorgt eine CAT 7 Verkabelung, sowie der Anschluss an das Glasfasernetz.
Die Lager/Produktionshalle Halle wird mit neuen Lufterhitzern beheizt, welche an der Decke montiert und an die Heizanlage angeschlossen sind.
An den Decken-Trägern sind LED-Leuchten installiert. Der Boden ist ein beschichteter Betonboden.
Sonstiges
In unserem Exposé werden die Informationen des Eigentümers oder Dritter (bspw. behördliche Informationen) weitergegeben, so dass für die uneingeschränkte Richtigkeit nicht eingetreten werden kann.
Die Vorauszahlung für die Betriebs und Nebenkosten beträgt 1.300,00 €.
Die Vorauszahlung für Heiz- und Warmwasserkosten beträgt 650,00 €.
Beim dem Mietpreis von 7.150,00 €/Monat handelt es sich um einen "Einstiegsmietpreis", der im Mietvertrag über die Jahre fair gestaffelt wird. Die Miete von 40,- €/Stellplatz kommt noch hinzu.
Die angegebenen Preise sind Nettoangaben.
Die Flächen werden für den Mieter provisionsfrei angeboten!
DISCLAIMER
Alle in dieser Broschüre/diesem Dokument enthaltenen Angaben wurden von der ISI-Immobilien GmbH nur für Marketingzwecke und allgemeine Informationen erstellt. Die ISI-Immobilien GmbH übernimmt keinerlei Garantie oder Haftung für jegliche Art der bereitgestellten Informationen, die weder Anspruch auf Vollständigkeit noch auf Fehlerfreiheit erheben. Die Nutzer dieser Broschüre/dieses Dokuments sind dazu verpflichtet, die Richtigkeit der Angaben eigenständig zu überprüfen. Daher erfolgen die Angaben unter Ausschluss jeglicher Haftung oder Garantie. Diese Broschüre/dieses Dokument ist urheberrechtlich geschütztes Eigentum der ISI-Immobilien GmbH.
Alle Rechte vorbehalten.
Energieausweisangaben
- Enerigeausweistyp Verbrauchsausweis
- Energie mit Warmwasser ja
- Energieausweis erstellt am 28.10.2023
- Energieausweis gültig bis 27.10.2033
- Heizungsart Öl-Heizung
- Befeuerung / Energieträger Öl
Herzlichen Dank für Ihre Anfrage.
Wir werden diese so schnell wie möglich bearbeiten.


























